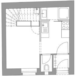
Im Hofgebäude eines Gründerzeithauses befand sich die 22 m² große Hausbesorgerwohnung. Diese wurde parifiziert und saniert. Nach dem Abbruch der oberen Decke wurde eine 8 m² Schlafgalerie eingezogen. Die Wohn und Schlafebene haben wir durch eine Stiege, kombiniert mit einem raumhohen Schrank verbunden, in dem auch ein Abstellraum enthalten ist. Hinter der Küche wurde ein kleines Badezimmer eingebaut. Somit haben wir auf 30 m² eine komplette Wohnung untergebracht. Wohnen, Schlafen, Stauraum, Küche, Bad, WC. Hier ist nichts zu viel und nichts zu wenig.
| Adresse | 1070 Wien |
| Kategorie | Wohnen, Sanierung, Umbau |
| Leistung | Entwurf, Planung, Umsetzung |








